Garden Extension | Angus

A sensitive extension to a well‑loved home in Carnoustie, opening up a bright kitchen–dining space and creating a more future‑proof, garden‑focused family home.

Project Details

Holyrood Street

Client: Private Client

Location: Angus

Year: 2026

Project Status: Planning Approval

house with white render and slate roof

Existing Rear Extension - An unusual form and configuraiton no longer fit for contemporary living

Existing Kitchen - Constrained with poor connection to the garden

Brief

The clients wanted to re‑establish clarity and quality in the heart of their home. Their priorities were to create a generous, well‑lit kitchen–living–dining space with a stronger connection to the garden, and to introduce a properly proportioned master bedroom — something the existing layout lacked. The project focused on improving everyday flow, enhancing natural light, and creating a calm, coherent set of spaces that would support long‑term comfort and flexibility

Existing Building & Site
The property is a semi‑detached house with good daylight to the rear, but the 1990s extension significantly limited its potential. Its ‘saw‑tooth’ form created a broken plan, restricted ceiling heights and very little connection to the garden. Circulation from the entrance to the kitchen required several changes in direction, making the layout feel disjointed. The two ground‑floor bedrooms within the extension were irregularly shaped, constrained, and no longer suitable for their intended use.

The project set out to resolve these inherited constraints — simplifying circulation, improving daylight, strengthening the relationship with the garden, and replacing the compromised bedrooms with a well‑proportioned master suite aligned with the overall reorganisation of the home.

Existing Rear Elevation - Featuring a saw-tooth wall - with very limited connections to the garden

Existing Plan - Featuring a broken plan and constrained kitchen layout, and two GF bedrooms with restricted ceiling and unusual shapes

Concept

The design replaces the fragmented rear extension with a single, clear volume that restores order to the plan. By aligning the new footprint with the central corridor, the extension creates a natural flow from the entrance through to the garden, allowing the main living spaces to open outwards in a coherent way. This simple architectural move unlocks the potential of the ground floor: a generous living hub, a well‑proportioned master bedroom, and a stronger, more intuitive connection to the garden.

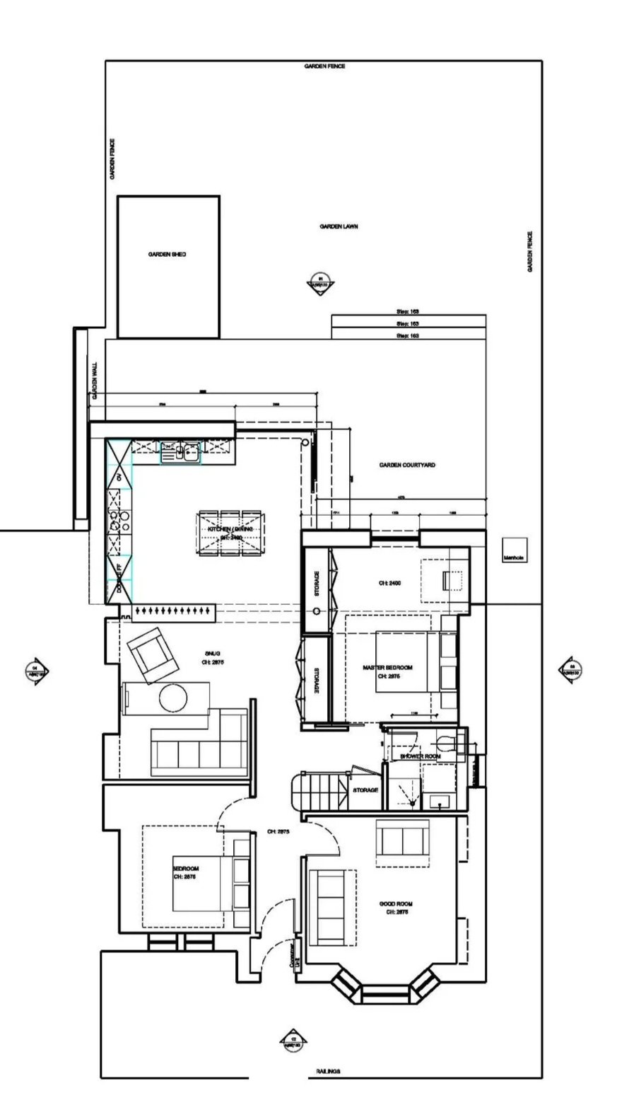
Concept plan for home extension

Proposed Plan — A simplified, unified footprint that restores clarity to the ground floor and strengthens the connection to the garden

Proposed Extension — Full‑height glazing and a calm, timber‑lined interior create a bright, open living space connected seamlessly to the garden.

timber lined kitchen interior with exposed joists and full height glazing

Design Principles

A New Living Hub

The extension creates a calm, consolidated kitchen–living–dining space at the heart of the home. By reorganising the ground floor, the design introduces a well‑proportioned master bedroom and simplifies circulation, bringing clarity and coherence back into the plan.

Maximising Light and Garden Connection

The rear of the property benefits from excellent daylight, and the new extension is shaped to make full use of it. Full‑height glazing frames views to the garden, while a rooflight above the dining area balances natural light throughout the space. A level threshold provides direct, step‑free access to a new patio and the existing lawn.

Restoring Order to the Plan

Replacing the irregular ‘saw‑tooth’ extension with a simple, rectilinear volume allows the ground floor to be reorganised logically. Aligning the new footprint with the home’s central axis creates a clear route from the entrance to the garden and supports a more intuitive arrangement of rooms.

Sensitive Integration

The extension is deliberately modest in scale and expression. A flat roof preserves the hierarchy of the original house, while a combination of vertical timber cladding and render ties the new structure into its context. Openings are positioned to respect neighbouring properties and maintain privacy, ensuring the addition sits comfortably within its setting.

reconfigured ground floor with open plan kitchen

Proposed Plan — A unified extension footprint that restores order to the ground floor and creates a direct, intuitive connection to the garden

New Extension — A modest, carefully detailed addition with full‑height glazing that opens directly onto a new patio and strengthens the home’s connection to the garden.
New Extension — A modest, carefully detailed addition with full‑height glazing that opens directly onto a new patio and strengthens the home’s connection to the garden.

New Extension — A modest, carefully detailed addition with full‑height glazing that opens directly onto a new patio and strengthens the home’s connection to the garden.

Dark timber clad extension with full height glazing
Dark timber clad extension with full height glazing

Garden Elevation — Sliding doors connect the new living space to the patio.

Previous
Previous

Bothy Extension | Angus